
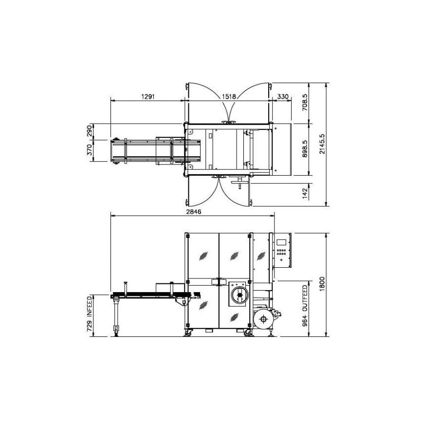
The BX Series is a fully automatic base seal overwrapping machine capable of wrapping speeds of up to 60 packs per minute.
With a PLC control system and HMI, quick change tooling combined to offer a highly flexible and efficient production machine.
All our overwappers have the capability to run Eco-friendly wrapping materials